Poznań, Podolany, Jasielska

62.45 m²
3 Pokoje
950 000 zł
Rata kredytu na 30 lat z 20% wkładem:
5 503
Szczegóły:
Powierzchnia:
62.45 m²
LICZBA POKOI
3
PIĘTRO
2
CENA ZA M²
15 212 zł
ROK BUDOWY
2023
RYNEK
Wtórny

Opis nieruchomości

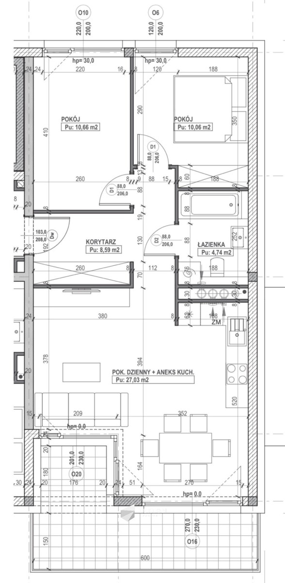
Na sprzedaż funkcjonalne, 3-pokojowe mieszkanie o powierzchni 62,45 m², położone przy ul. Jasielskiej 5C w dzielnicy Podolany w Poznań. Lokal znajduje się na 2. piętrze w nowoczesnym budynku z 2023 roku.

Mieszkanie wyróżnia się przemyślanym układem pomieszczeń oraz bardzo dobrą funkcjonalnością. Dużym atutem jest balkon połączony z loggią, który daje szerokie możliwości aranżacyjne i pozwala korzystać z tej przestrzeni przez cały rok. Dodatkowo balkon usytuowany jest w sposób zapewniający prywatność – brak bezpośredniego widoku na okna sąsiadów.

Najważniejsze atuty nieruchomości:

  • Nowy budynek z 2023 roku
  • Funkcjonalny układ 3 pokoi
  • Balkon połączony z loggią
  • Duża prywatność – brak widoku na sąsiednie okna
  • Miejsce postojowe w hali garażowej
  • Cicha i spokojna okolica
  • Dobra komunikacja

Mieszkanie składa się z:
– Salonu z aneksem kuchennym,
– Dwóch oddzielnych sypialni,
– Łazienki,
– Korytarza,
– Loggii,
– Balkonu.

Budynek:
Nowoczesny budynek z 2023 roku, z podziemną halą garażową. Do mieszkania przynależy miejsce postojowe w hali garażowej, z wygodnym wjazdem zlokalizowanym bezpośrednio przy budynku. Cena miejsca postojowego 45 tyś. zł.

Lokalizacja:
Osiedle położone jest w spokojnej części dzielnicy Podolany, z jednoczesnym dostępem do pełnej infrastruktury miejskiej. Okolica charakteryzuje się ciszą i kameralnym charakterem, a jednocześnie zapewnia dobrą komunikację z pozostałymi częściami miasta. W pobliżu znajdują się sklepy, punkty usługowe oraz tereny zielone, sprzyjające codziennemu wypoczynkowi.

Mieszkanie idealnie sprawdzi się dla rodziny z dzieckiem, jak również jako inwestycja pod wynajem.

Zapraszamy do kontaktu i na prezentację mieszkania.
Z przyjemnością pokażę nieruchomość i odpowiem na wszystkie pytania.



Poznań
Anna Ratajczak
Property Advisor, Team Leader
NAPISZ DO MNIE
533 261 185
OPINIE (10)
OFERTY DORADCY

Lokalizacja

SPRAWDŹ LOKALIZACJĘ:
Zlokalizuj
NAJSZYBSZA TRASA
CZAS
DYSTANS

    Nr oferty

    Powiadom mnie

    Podane przez Pana/Panią dane osobowe będą przetwarzane wyłącznie w celu odpowiedzi na zapytanie skierowane do nas za pomocą formularza. Brak wyrażenia zgody na przetwarzanie Pani/Pana danych w celach marketingowych oraz na kontakt za pomocą telekomunikacyjnych urządzeń końcowych będzie skutkować brakiem możliwości przedstawienia pełnej oferty usług/produktów Tekton Capital sp. z o.o.

      Nr oferty

      Umów spotkanie


      Podane przez Pana/Panią dane osobowe będą przetwarzane wyłącznie w celu odpowiedzi na zapytanie skierowane do nas za pomocą formularza. Brak wyrażenia zgody na przetwarzanie Pani/Pana danych w celach marketingowych oraz na kontakt za pomocą telekomunikacyjnych urządzeń końcowych będzie skutkować brakiem możliwości przedstawienia pełnej oferty usług/produktów Tekton Capital sp. z o.o.

      Podobne oferty

      Poznań, Grunwald, Ułańska
      66.20 m²
      3 Pokoje
      879 000
      Zobacz więcej
      Poznań, Naramowice, Karpia
      70.00 m²
      3 Pokoje
      899 000
      Zobacz więcej
      Poznań, Centrum, Bóżnicza
      59.84 m²
      2 Pokoje
      869 000
      Zobacz więcej
      Poznań, Piątkowo, Stefana Batorego
      95.10 m²
      4 Pokoje
      955 000
      Zobacz więcej
      Poznań, Jeżyce, Poznańska
      74.10 m²
      3 Pokoje
      998 000
      Zobacz więcej
      Poznań, Grunwald, Arnolda Szylinga
      89.80 m²
      4 Pokoje
      870 000
      Zobacz więcej
      Poznań, Centrum, Wodna
      64.10 m²
      3 Pokoje
      989 000
      Zobacz więcej

      Oblicz ratę kredytu

      lat
      WYNIK:
      WYSOKOŚĆ RATY RÓWNEJ
      1 094 zł
      Skontaktuj się

      Sprawdź swoją zdolność kredytową

      lat
      lat

      Podane przez Pana/Panią dane osobowe będą przetwarzane wyłącznie w celu odpowiedzi na zapytanie skierowane do nas za pomocą formularza. Brak wyrażenia zgody na przetwarzanie Pani/Pana danych w celach marketingowych oraz na kontakt za pomocą telekomunikacyjnych urządzeń końcowych będzie skutkować brakiem możliwości przedstawienia pełnej oferty usług/produktów Tekton Capital sp. z o.o.

      WYNIK:
      DOSTĘPNA KWOTA KREDYTU WYNOSI
      350 999 zł
      Jeśli chcesz omówić otrzymany wynik:
      Skontaktuj się
      * Powyższe wyliczenie jest symulacją opartą o informacje przekazane przez Klienta i ma charakter jedynie poglądowy. Ocena zdolności kredytowej wykonywana jest wyłącznie przez bank, na podstawie przedłożonych dokumentów i informacji niezbędnych do jej dokonania. Symulacja nie stanowi oferty w rozumieniu ustawy z dnia 23 kwietnia 1964 r. – Kodeks cywilny.